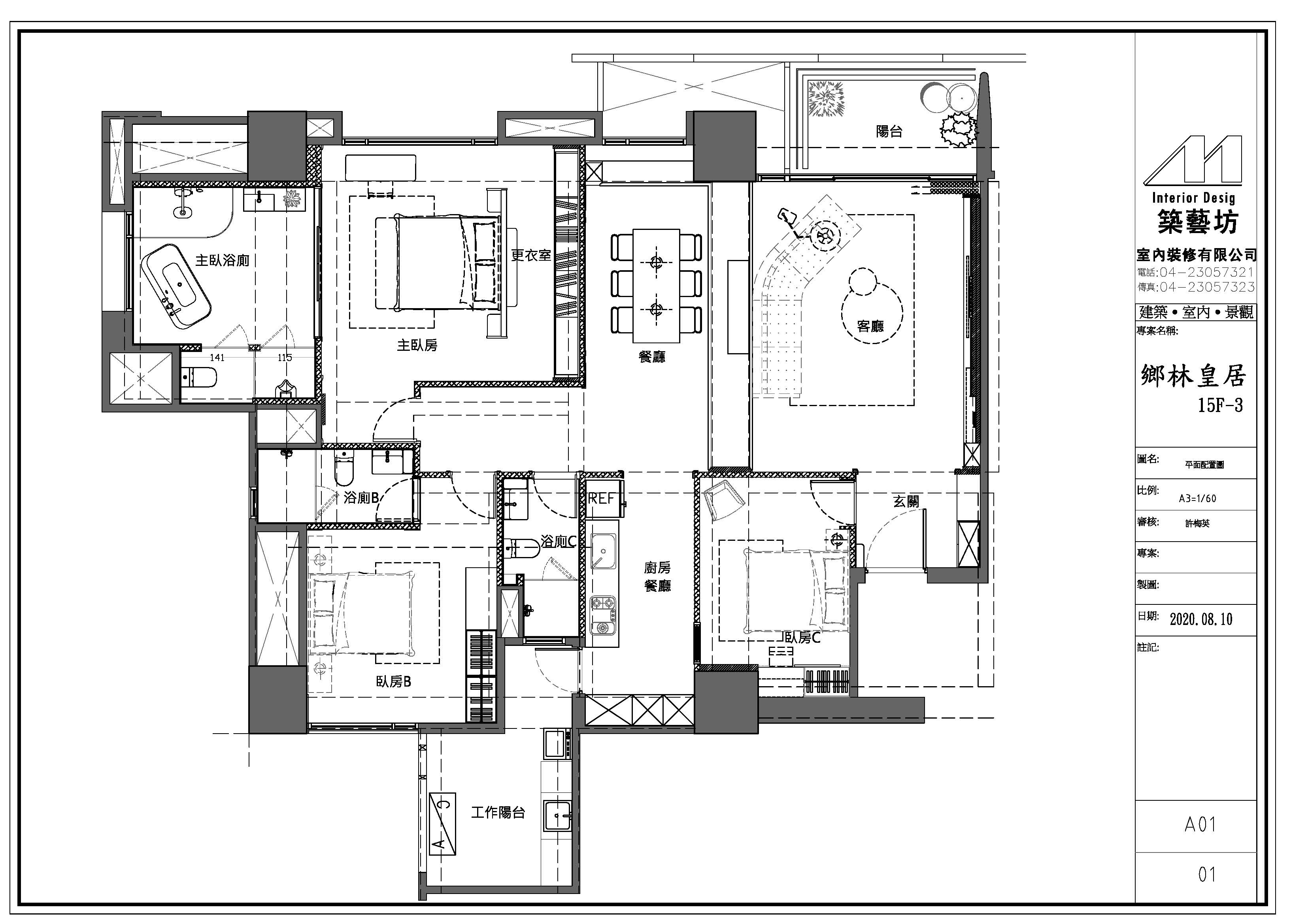
鄉林皇居 / 雅緻美寓・Elegant Abode

作品欣賞

CASE

鄉林皇居 / 雅緻美寓・Elegant Abode

上一頁

鄉林皇居 / 雅緻美寓・Elegant Abode

作品詳情

榮獲
▸ 2022 MUSE Design Awards 銀獎

▸ 中國設博會 國際環藝創新設計作品大賽

▸ NOVUM DESIGN AWARDS 法國NDA創新設計大獎   

 

「台中 · 鄉林皇居」

飯店式設計,家就是最好的度假目的地 

 >>> 想看本案完整介紹|點此閱讀

依據歐盟施行的個人資料保護法,我們致力於保護您的個人資料並提供您對個人資料的掌握。
按一下「全部接受」,代表您允許我們置放 Cookie 來提升您在本網站上的使用體驗、協助我們分析網站效能和使用狀況,以及讓我們投放相關聯的行銷內容。您可以在下方管理 Cookie 設定。 按一下「同意」即代表您同意採用目前的設定,更多資訊請瀏覽 隱私權聲明

此網站使用了Cookies

依據歐盟施行的個人資料保護法,我們致力於保護您的個人資料並提供您對個人資料的掌握。按一下「同意」,代表您允許我們置放 Cookie 來提升您在本網站上的使用體驗、協助我們分析網站效能和使用狀況,以及讓我們投放相關聯的行銷內容。

按一下「僅必需的」,代表您只允許我們置放必要的 Cookie。網站運行離不開這些 Cookie 且您不能在系統中將其關閉。通常僅根據您所做出的操作(即服務請求)來設置這些 Cookie,如設置隱私偏好、登錄或填充表格。您可以將您的瀏覽器設置為阻止或向您提示這些 Cookie,但可能會導致某些網站功能無法工作。

關於Cookie 谷歌隱私權政策